Baugrundstück mit Baugenehmigung für großzügiges freistehendes Wohnhaus mit Garage in Zerf
ID: GSTPRZE434/1285507
Información de contacto :
Herr Norbert Scherf
Scherf Profi Immobilien Service GmbH
Paulinstraße
54292 Trier
Tel.: +49 (0) 651 97878-0
Fax: +49 (0) 651 97878-78
Scherf Profi Immobilien Service GmbH
Paulinstraße
54292 Trier
Tel.: +49 (0) 651 97878-0
Fax: +49 (0) 651 97878-78
terreno de construção Zerf Venda Alemanha | P1020453

terreno de construção Venda
€ 99 000 (≈ US$ 115 000)
DE-54314 Zerf
Rheinland-Pfalz, Alemanha
Contactar o proprietário
Financeiro
€ 99 000 (≈
Comissão livre para o comprador / inquilinodisponível acordo com o acordo
Áreas
propriedade0,14 acre
Descrição
Schönes Baugrundstück mit Baugenehmigung für großzügiges freistehendes Wohnhaus in gefragter Lage von Zerf Schönes Grundstück mit genehmigter Planung für ein großzügiges freistehendes Wohnhaus in gefragter Lage von Zerf.
Das Grundstück ist ortsüblich erschlossen. Die Hausanschlüsse müssen durch den Erwerber erstellt werden. Die geplante Bebauung sieht ein großzügiges Wohnhaus 2-geschossig mit ausgebautem Dachgeschoß in einer Größe von 9 x 9 m vor. Es ist keine Bauverpflichtung
vorhanden. Das Grundstück wird mit Baugenehmigung für ein freistehendes Wohnhaus verkauft. Die Planung ist nur beispielhaft. Es ist auch eine andere Planung in Abstimmung mit der Bauverwaltung möglich. Es ist keine Bauverpflichtung vorhanden
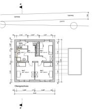
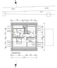
Die jetzige Planung für dieses Objekt sieht im Erdgeschoß den großzügigen Wohnraum/Essbereich mit offener Küche von insgesamt ca. 42 m² vor. Dieser verfügt über mehrere Ausgänge auf die schöne Terrasse und in den Garten. Auf Wunsch kann die Küche wahlweise offen oder geschlossen gestaltet werden. Das Erdgeschoss wird durch den Technik- bzw. Abstellraum sowie das Gäste-WC vervollständigt. Im Obergeschoss befinden sich zwei große helle Kinderzimmer von jeweils ca. 16 m², ein weiteres helles Kinderzimmer von ca. 13 m², das Kinderduschbad mit Fenster sowie der Hauswirtschaftsraum mit Anschluss für Waschmaschine und Trockner. Das Dachgeschoß ist ebenfalls zu Wohnzwecken ausgebaut. Hier befindet sich das große Elternschlafzimmer mit Ankleide von insgesamt ca. 21 m², ein schönes Kinderzimmer/Büro von ca. 10 m² sowie das großzügige Elternbad mit Fenster (ausgestattet mit Wanne und Dusche). Die Wohnfläche beträgt ca. 182 m².
Bebauung nach: 34_NACHBARSCHAFT
Status Erschlie?ung: ORTSUEBLICHERSCHLOSSEN
posição
#KreisTrier-Saarburg #Saarburg-Kell
Zerf, gefragter Wohnort ca 20 Autominuten von Trier. Zerf verfügt über eine sehr gute Infrastruktur. Grundschule mit Essen und Nachmittagsbetreuung, Kindertagesstätte mit Nachmittagsbetreuung, Supermarkt, Banken, Bäckereien, verschiedene Geschäfte, Gastronomie Ärzte, Apotheke etc sind im Ort vorhanden.Das Baugrundstück befindet sich Ortsrand von Zerf in der Trierer Straße. Kindergarten und Grundschule sind von hier auf kurzen Wegen erreichbar
acessórios
Schönes Grundstück mit genehmigter Planung für ein großzügiges freistehendes Wohnhaus in gefragter Lage von Zerf.Das Grundstück ist ortsüblich erschlossen. Die Hausanschlüsse müssen durch den Erwerber erstellt werden. Die geplante Bebauung sieht ein großzügiges Wohnhaus 2-geschossig mit ausgebautem Dachgeschoß in einer Größe von 9 x 9 m vor. Es ist keine Bauverpflichtung
vorhanden. Das Grundstück wird mit Baugenehmigung für ein freistehendes Wohnhaus verkauft. Die Planung ist nur beispielhaft. Es ist auch eine andere Planung in Abstimmung mit der Bauverwaltung möglich.
Die jetzige Planung für dieses Objekt sieht im Erdgeschoß den großzügigen Wohnraum/Essbereich mit offener Küche von insgesamt ca. 42 m² vor. Dieser verfügt über mehrere Ausgänge auf die schöne Terrasse und in den Garten. Auf Wunsch kann die Küche wahlweise offen oder geschlossen gestaltet werden. Das Erdgeschoss wird durch den Technik- bzw. Abstellraum sowie das Gäste-WC vervollständigt. Im Obergeschoss befinden sich zwei große helle Kinderzimmer von jeweils ca. 16 m², ein weiteres helles Kinderzimmer von ca. 13 m², das Kinderduschbad mit Fenster sowie der Hauswirtschaftsraum mit Anschluss für Waschmaschine und Trockner. Das Dachgeschoß ist ebenfalls zu Wohnzwecken ausgebaut. Hier befindet sich das große Elternschlafzimmer mit Ankleide von insgesamt ca. 21 m², ein schönes Kinderzimmer/Büro von ca. 10 m² sowie das großzügige Elternbad mit Fenster (ausgestattet mit Wanne und Dusche). Die Wohnfläche beträgt ca. 182 m².
Teilbar ab: 583
outro
Vereinbaren Sie einen Beratungs/Besichtigungstermin !In Zusammenarbeit mit einem Finanzierungsvermittler sind wir Ihnen gerne bei der Gestaltung Ihrer Finanzierung behilflich.
Auf Wunsch kann der Kaufpreis bei entsprechender Bonität bis 100 % finanziert werden. Die Zinsen können z.B. auf die Dauer von 10 oder 15 Jahren festgeschrieben werden. Hierdurch können sich Ihre monatlichen Raten nicht verändern !
Familien mit Kindern haben die Möglichkeit günstige öffentlliche Baudarlehen über die ISB Rheinland-Pfalz zu erhalten.
Der Verkauf erfolgt provisionsfrei.
Lassen Sie sich beraten.
Weitere interessante Kauf- oder Mietangebote finden Sie unter www.scherf-immobilien.de
Mit der Angebotsanfrage willigen Sie ein, dass die Firma Scherf Profi Immobilien Service GmbH, mit dem Sitz in Trier, Ihre personenbezogenen Daten zum Zweck der Übermittlung von Angeboten und Kaufverhandlungen mit Zusendung von weiteren Informationen aus dem Immobilienbüro verarbeitet und Ihnen diese Informationen zusendet bzw. Sie anruft. Sie werden hiermit ausdrücklich darüber informiert, dass Sie diese Einwilligung jederzeit und ohne Angaben von Gründen gegenüber dem Immobilienunternehmen widerufen werden kann.
renúncia
Alle Daten haben wir vom Eigentümer erhalten. Hierfür kann unsererseits keine Gewähr übernommen werden. Das Angebot ist unverbindlich und freibleibend. Zwischenverkauf bleibt vorbehalten.














data load ...
Anúncios