Wohnhaus mit Garage - Zwangsversteigerung
reedb-id: 1308615
#Zweifamilienhäuser #Zwangsversteigerungen #Obersonnberg #BundeslandTirol #BezirkLienz #Österreich
Kontaktinformationen:
Versteigerungsdatum und -zeit: am 15.12.2025 um 09:00 Uhr
Versteigerungsort: Bezirksgericht Lienz, Hauptplatz 5, Verhandlungssaal 104, I. Stock
Versteigerungsort: Bezirksgericht Lienz, Hauptplatz 5, Verhandlungssaal 104, I. Stock
Zweifamilienhaus Obersonnberg Versteigerung Österreich

Zweifamilienhaus
Zwangsversteigerungen
Schätzwert, Verkehrswert € 292 000 (≈ US$ 338 000)
AT-9972 Obersonnberg, Eschenweg 6
Bundesland Tirol, Österreich
Finanzen
Versteigerungstermin 15.12.2025
338 000)
Schätzwert, Verkehrswert € 292 000 (≈
Flächen
Wohnfläche2.319,30 sq.ft
Grundstück0,14 acre
Beschreibung
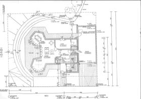
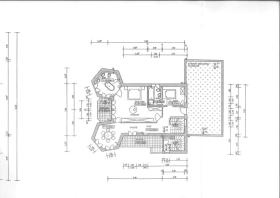
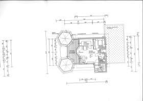
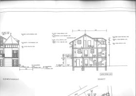
Das Wohnhaus wurde als Zweifamilienhaus mit Garage in Massivbauweise errichtet.Es besteht aus Erd-, Ober- und Dachgeschoss und ist mit einem Satteldach mit der Firstrichtung O/W und zwei Zeltdächern abgedeckt.
Das Gebäude weist ein Grundrissmaß von rd. 14m Länge und 10,5m Breite auf, wobei
Gebäudeecken turmartig ausgebildet sind.
Im Erdgeschoss und im 1. Obergeschoss befindet sich eine selbständige Wohneinheit, diese
ist ebenerdig erreichbar und über eine interne Treppe mit dem Obergeschoss verbunden.
Die zweite Wohneinheit befindet sich im Dachgeschoss.
Vadium: 29.200,00 EUR
Geringstes Gebot: 146.000,00 EUR
Lage
#BezirkLienz
Haftungsbeschränkung
Alle Angaben sind ca. Angaben und können von den tatsächlichen Werten abweichen.Die Daten zu diesem Objekt /Immobilie wurden manuell (nicht vom Anbieter) eingepflegt.
Für Vollständigkeit und Richtigkeit der Angaben kann keine Haftung übernommen werden.
Die aktuellen Daten entnehmen Sie gegebenenfalls von der angegebenen Seite oder setzen
Sie sich mit dem Anbieter in Verbindung.










data load ...
Anzeigen